Query Now

Overview

Building Dreams, Creating Homes: Our Story

Brigade Icon is an integrated lifestyle enclave that's a sophisticated blend of residential, commercial and retail centrally located in Mount Road, Chennai. The project spawns around 5 acres, Residential tower is a Ground Plus 38 storey high-rise structure with 200 opulent homes that comprises of 3, 4 and 5 bed residences with expansive sea and city views. The project has connectivity to two major roads, Mount road and Whites road.

Downlaod Brochure

Highlights

Elevating Properties: Our Spotlight Features

Smart Door Lock and Video Door Phone (VDP) control through mobile app

Lighting, fan and air conditioner control

Electrical provision for curtain motor

Access control for the lobby and amenity areas

Hardwood frame with architrave and veneer flush shutter

Price

Unlock the Door to Affordable Luxury

Apartments

₹ 8.4 - 9.6 Cr* Onwards

Typology :

3 BHK + SR + Studio

Size :

2750-2800 Sq Ft

Apartment

₹ 10.3 - 11.8 Cr* Onwards

Typology :

4 BHK + SR

Size :

3200 - 3300 Sq.ft.

Apartment

₹ 23.5 - 25 Cr* Onwards

Typology :

5 BHK

Size :

On Request

Our Amenities

Amenities that Define Excellence

Swimming Pool

24x7 Security

Kid's Play Area

Parking

High Speed Wifi

Jogging Track

Gym

Multipurpose Hall

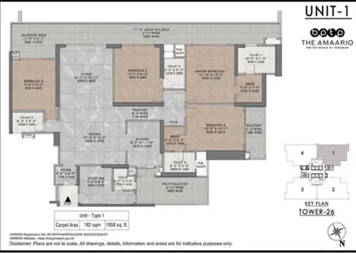
Floor Plan

Your Vision, Our Floor Plans

Location Advantages

Discover Your Perfect Place in the Perfect Location

Chennai International Airport

14 Km

National Public School

1.6 Km

MEASI Academy of Architecture

1.8 Km

Egmore Railway Station

03 Km

About Developer

Brigade Group is a renowned real estate developer with over three decades of experience. The group is founded by M.R. Jaishankar in 1986, has evolved as a major real estate developer known for its fixed commitment to quality and innovation. Brigade Group has a reputation for designing environments that change urban living after completing multiple successful projects. Brigade Metropolis, Brigade Gateway, and Brigade Exotica are among the notable prior projects that have contributed to the group's record of excellence. The Brigade Group has built an impressive portfolio encompassing residential, commercial, and hospitality projects spanning multiple cities across India, including Chennai, Hyderabad, Bangalore, Kochi, Mangalore, and Mysore. From high-rise apartments to villas and townships to tech parks and office buildings all of their projects feature modern amenities and contemporary design. Currently, Brigade Group is actively engaged in several ongoing projects, showcasing their dedication to transforming cityscapes. Some Projects of Brigade Groip in Bangalore & Chennai & Hyderabad.

Tap To Call Query Now Whats App